



產品簡介
礦用濕式除塵風機應用于煤礦井下、巖開巷及錨噴作業面噴漿機,采掘工作面等粉塵比較集中的產塵作業點。使含塵空氣就地凈化并能部分消除氣體中的有毒有害成份,有效地使作業環境符合工業衛生標準保護工人免受塵毒侵害。
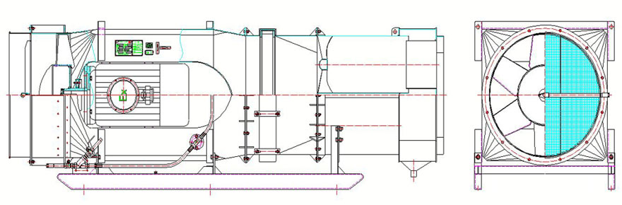
礦用濕式除塵風機由煤礦用抽出式防爆局部通風機與濕式螺弦捕塵器裝配組成,配裝的風機選用軸流式防爆型抽出式局部通風機,只要除塵器的工作點設計與風機的阻力特性匹配,即可保證整機性能達到設計指標。礦用濕式除塵風機執行標準MT159-2005《礦用除塵器通用技術條件》和Q/HR002-2018《KCS系列礦用濕式除塵風機》。
工作原理
含塵空氣經風機動力吸(壓)入捕塵器,通過振弦過濾器時,在來流方向上設置的水噴霧器向振弦過濾板上噴霧,附有水幕的纖維能使粉塵濕潤增重或凝并或滯留。同時由于通過的含塵氣體使纖維在氣流沖擊下產生振動,強化了水霧粒與含塵氣體中粉塵融合,提高了對微細粉塵的捕獲,由于振弦過濾器自身纖維的自凈能力,及噴霧器不斷向過濾器噴霧,使經過過濾器的含塵氣體變成濕潤含塵液氣流,含塵液氣流通過旋流器形成高速旋轉的液氣流,在離心力的作用下將含塵水霧拋向脫水筒內壁形成污水流,通過脫水環下排污口流出機外或進入循環過濾水箱重新經噴霧泵站循環使用。
KCS-410D礦用濕式除塵風機結構示意圖

礦用濕式除塵風機主要技術參數表
